三年中文在线看免费观看电视剧大全-三年高清在线观看-三年在线观看免费高清-三年中文在线观看大全电视剧

CASE 辦公室裝修設計設計

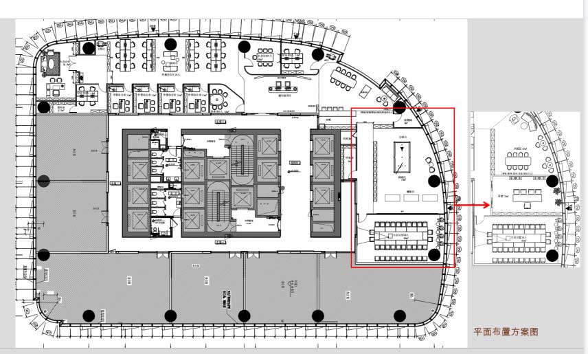
鄭州裝修設計公司 >> 辦公室裝修設計 >>800㎡鄭州辦公室裝修設計效果圖

800㎡鄭州辦公室裝修設計效果圖

2024-08-28 540 預約參觀

千舟裝飾是一家專業(yè)的辦公室裝修設計設計公司,提供辦公室裝修設計設計與裝修施工服務!辦公室裝修設計設計案例專區(qū)推薦800㎡鄭州辦公室裝修設計效果圖,800平米辦公室裝修設計效果圖,鄭州金水區(qū)辦公室裝修設計方案、800平米辦公室裝修設計效果圖、800平米辦公室裝修設計施工報價明細!

800㎡鄭州辦公室裝修設計效果圖


項目名稱辦公室裝修設計

項目位置 : 鄭州金水區(qū)

項目面積:800平米

項目介紹:千舟設計

在線預約設計師

請輸入您的稱呼
請輸入您的手機號碼請正確輸入您的手機號碼
請輸入裝修面積
RelevantCASE 相關案例

1000+
業(yè)主共同見證


免費驗房/量房設計/施工報價
專業(yè)設計師/自營施工隊
不轉包/不分包/曾諾0增項
千舟裝飾以品質贏得口碑

booking

現在預約咨詢,立即享受免費量房設計&施工報價

10秒快速在線申請

  • 請輸入空間類型
  • 請輸入建筑面積
  • 請輸入您的稱呼
  • 請輸入您的電話